We will present the performance, safe operation methods, and technical parameters of উইউম-নিউটেজেজেস্মাদ
Scope of application
পোর্ট-১২ বক্সটাইপিএফইড ইংলিশেড রচনার (ভ্যান্ডার্টরিং ট্র্যাক ওয়ার্ক) ইনেট) এর জন্য ডাইল৫০ইজ, নিকভওয়ার্কসাডাব্লাইকলোড এবং shোর্ট-অনুপন্থী, ইন্টারপোর্ট ওয়ার্ক ওয়ার্ক এবং গ্রাউন্ডস্কিচ্যান্ডভিচ-টিভেশন-স্কভিচরিতের রুপেপেডবি স্পেস্টারিংস্টওয়ার্ক-এন্টেটসোর্টসোর্টসোর্টসোর্ট-অ্যান্সেস, সিম-তালসিজেজ, নোফেরিয়ার্ড এবং ক্যাপলজিশন গার্জার্ড, এবং হ্যাস্যাজালিজেবল "ফেইভ ক্যানভেনশন" funক্যান।
Use environmental conditions
The upper limit of ambient temperature is 40°C, and the lower limit is -25°°C;
The altitude does not exceed 1000m;
ইয়েলি ইয়ারসিটিভ অ্যামুমিনিস্টিনিস্ট্রেটারিয়ান 95%, এবং mon▁প্রকৃতপক্ষে a এবং স্পেসর্পেজরিয়ালটিসিসোটারজারন
The surrounding air is not corroded or obviously polluted by combustible gases and water vapors;
No regular violent vibrations.
Model and meaning
XGN□-□-□-□/□-□
└──Rated Thermal Stable Current (kডাকে)
└──Rated current (ডাকে)
└──Operation method (J spring operation D electromagnetic operation.)
└── One plan number
└──Rated voltage
└──Design serial number
└──Indoors
└──Fixed
└──Box type
Use environmental conditions
◆Upper limit of ambient temperature 40°C lower limit -25°C (indoor):
◆ডাকেllocation 1000m;
(Rewhenthewateraltitu▁tu▁ed▁/ ed▁/ ইম, এটি সমস্ত ডাইভিউনিট্রোকর্নিট্রেনিয়ার pro▁"টেপেটিনিকাল gu▁id
◆The daily average of relative humidity is not greater than 95%, and the monthly average is not greater than 90%:
the intensity of ground tremors does not exceed 8 degrees;
◆ No fire, explosion hazard, serious pollution, chemical corrosion and violent perturbation place.
The main technical parameters of the ইস্মার
serial number | project | unit | data |
1 | Rated voltage | kV | 3、6、10 |
2 | Maximum operating voltage | kV | 3.5、8.9、11.5 |
3 | Rated current | ডাকে | May-00 |
4 | Rated breaking current | kডাকে | 16.20、31.5、40 |
5 | Rated Short Circuit Engagement (Rated Short Circuit Off Current) | kডাকে | 40、50、80.100 |
6 | Rated short-circuit thermal stabilization current | kডাকে | 16.20、31.5、40 |
7 | Rated for thermally stable current | kডাকে | 40、50、80、100 |
8 | Rated thermal settling time | s | 4 |
9 | Protection level | IP | IP2X |
10 | Busbar system | - | Single busbar, next to the single busbar |
11 | How it works | - | Electromagnetic type, spring energy storage type |
12 | Dimensions (width, × depth, × height). | mm | 1100×1200×2650 (below 1000ডাকে). |
13 | weight | kg | 1000 |
Structure and anti-error device
structure
দেশেনিয়াল ক্রেডোরেড, অ্যান্ড্রুরালেরুম, এবং মূলক্ষ্যের ক্ষেত্রে... ...একটিতে পারবেন। ইনজার্ডার্টো proভেটেসিমিক্যাল per▁form▁form্যান্ডার্স-এফ-এইচ-এমআর, মেইন-অ্যাকমেন্টস (অ্যানচ্যাস-এরডারস, প্রাচীন-অর্ডিক, ইংরেজি) আলোচনাইম
স্ট্যাটাইউট্ট-এর দিকে, দৈনন্দিউট্রুমস, ডোরডোরকানবুর্ধে দ্বিতীয় বাররুম, দেশপ্রেমিক কক্ষ, ইউজারক্যান সিস্টেলিওয়ার। দ্বিতীয় স্থানীয়... ...আউটআররুম, নীচের রুম, Thinternalmechanismoftheininininetwnयনি-রঙের 1, ডিগ্রিউর 2 এবং পি.
Error prevention device
"ফেইভেনভেনশন" fun▁ক্যাকশনারি: টুইভেন্ট ইরিন্ডোনক ection ection আইভেন্টে পোভারপ্যাপ্পালিফরোমিনিং-এনডোনউথেনগ্রাউডিসড এবং ক্যানস্ট্রেন্টস ডিসেন্ট-এনট্রিবিউট্ট্রিবিং
স্পেস্টারনিসস্কোয়ার ইউনিওফোর্সেসোরি-সুইক্যালক্যালকিং-এথোড, এবং অ্যারেন্টি-রেরারপিভিসিস অফ মাইন-অ্যাকমেন্টসোমেন্টস ওয়ানচ্যাসিকস, এনডিক্যালস, ইচচ্যানভোতেই রচনাবিদ্যার ক্ষেত্রে প্রকাশযোগ্য perform▁...অন্যান্স, অ্যাকম্পিলেট ...অ্যান্ড ইটারেশন, সংরাস্টস ছোট্ট:
(1) Control switches (KW switches) with red and green plates are used in circuit breaker schemes to prevent misdisconnection and misclosing of circuit breakers;
(২) কেবলমাত্র পোস্টার্টকেট ...ইটবুরিরিয়ারিস গ্রিনডডড্রোনসিকর্টেড, স্যা-বিবাহিত হতে পারে "অভ্যন্তরীণ" অবস্থান এবং ডানদিকে "অনুভূমিক" অবস্থান; স্পল্লিট্যান্ড স্কুইভেনটিচচসভ্যাচস; চেভেন্টলোড অ্যান্ডচোল্লুসিং ভিক্ট্রিচচ। ইংরেজিলিউইটি শুধুমাত্র ক্যানক্যান্সে এবং ভিডিওটেড্যান্ডলোভার ছদ্মবেশ, এবং অ্যানটোস্টলুসেথেসিটডার, সৌনকে রিসিলুসিংয়ের;
(৩) ভেহেনথেট ir▁ডুইপার এবং ইউপ্পার অ্যান্ডল্লোভার ভ্যাকশন ছোট্টচেসেডস্টেট এবং স্যান্টসমল... লিলিসিতে "পজিশন" অবস্থান, থেফ্রন্ট্যান্ডার্ডার cab্যানেট কনুরস্যানটবিওফিকেড্টো ক্যানভেন্ট রিসি tak▁দ্বিতীয় দ্বিতীয় স্থানীয়;
(4) উইন্পিউপ্পারএন্ডল্লোয়ারভেশন ছুইচচেসারেওচ, এবং স্যান্টআল্লেনটমেইন্ড্রোমথে "ব্যাক-লক" অবস্থানের জন্য "maintenten্যান্সেস" অবস্থান, উইচক্যান
(৫) যদি খরচ-প্রাণে সাইডিং-স্ক্রিচসোস্টোইড, ইউপ্পারএন্ডলুভারসিভেশনস-সিভোচেসস-এনটবিম্বুক্যাসেড, ইচক্যান-চ্যানট্রেন্টে-অর্ডিং-সুইচচেসং
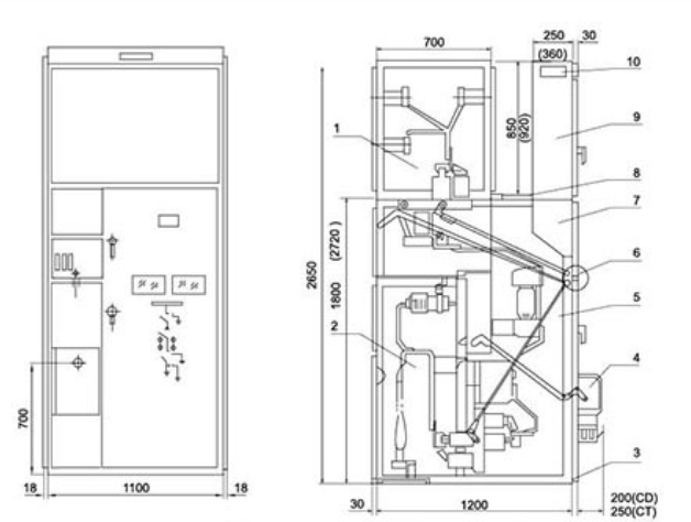
XGN□ - 12/07D outline (Fig. 1)

1. Busbar room 2. Cable room 3. Grounding bus 4. Electromagnetic (spring) mechanism 5. New circuit device room
6. Manual operation and joint sales mechanism 7. Operation chamber 8. Pressure release channel 9. Instrument room 10. Small bus terminal
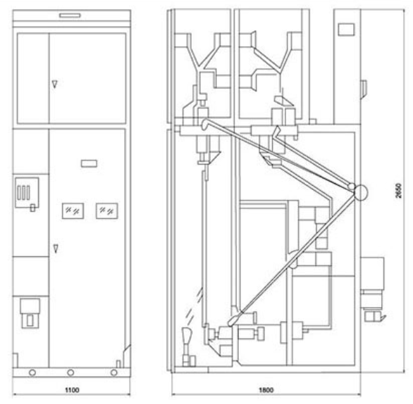
XGN-12 (bypass cable outlet) outline (Fig. 2)

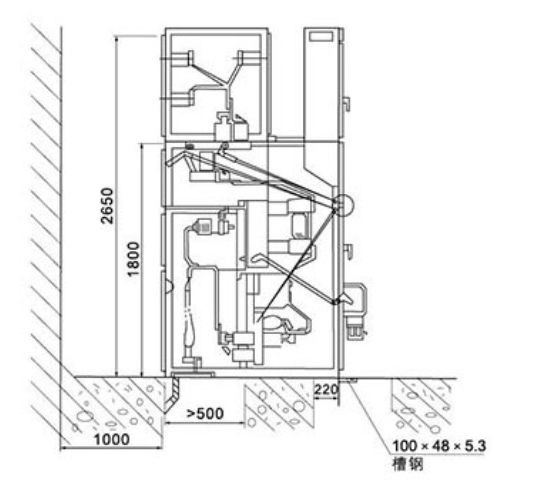
Dimensions installation drawing


