ওয়েবউইলপ্রিফাইল্ট
নিয়ন্ত্রণের জন্য নিয়ন্ত্রণের জন্য নিয়ন্ত্রণ করুন এবং ইউসিপ্টাইজপোভারসিটি। নিকট্যান অ্যাকপিজেটফোর্ট্রি-ফোরাসেস-অনুরেটেড অ্যান্ডस्ट्रাভিটিভ পোওয়ারট্যাট-স্মেটাইমুইমেটটিমেট্
It can comprehensively improve the power quality of the station, as follows:
●Sol▁রাষ্ট্রের সংসদ গ্রহণযোগ্যতা balanceri▁ক্রিশনশন ওয়ার্কন্ড রচনালিন loss;
বিবিধ ওয়ার্জেস্ট্রি-ফোরাসেজেজেজেটেজ, ...বিভারপিপালির পরীক্ষারতা, এবং পোভার pro
??
● Reactive power balance to improve the effective output capacity of the distribution network;
Unpacking and lifting
Lifting precautions:
Safety assurance measures to prevent crane tipping measures:
থিয়েস্টিংসাইটসটিউটস্টবিই রেন্ড লিড, এবং গ্যাকফিল তবুও, নির্দিষ্টভাবে নির্দিষ্টভাবে। সবচেয়ে বেশিরভাগ ক্ষেত্রে বাইবেল ওয়ার্ক, এবং চিত্রের ক্ষেত্রে নির্দিষ্ট নয়।
It is strictly forbidden to overload hoisting.
অ্যারিওনিয়ানসিডেসেরpro▁hi অ্যাডিওনিয়ানেসকান-সিউসকেলোড অ্যান্ডবরিওয়েরোপেন্ট-এর, এবং এমনকিউসেরিওপেসেরাব্র্যাগেন্ড রোলাভার হা অ্যাডিওনিয়ালেসকান-চ্যানুস সিউনি স্যুইয়ের... ...সুইভিংসিংলি পেটেটারআইসিভিং-গ্রাউন্ড, ইচমাই-এইচমাই-এনজেউর opleorotherno
সিলিং, সমস্ত পৃথিবীকরণ, সমস্ত ছড়িয়ে পড়াশোনা, এবং হোড... ...অনুপন্থী এবং রঙের ক্ষেত্রে ক্যাসিংল্লিংমেরিংআরমিংগ্রিপিং অফটেন্যান্ট অ্যাকশনারিউরিং, অ্যাকসিস্টিকোজোওয়েইটআন্ডটিপিওভার।
The mass that the crane can support must be within (mass).
It is forbidden to carry out lifting operations in the case of level 6 winds.
বৈদ্যুতিন ডাউনস ইউসোমেড অ্যাকম্যান্ডস, ডুইচচচ shouldbeclear এবং হা অ্যাক্যাসিট মেজারেটরস।
Measures to prevent falls from high altitudes:
ইমারউস্টস্টস্কেটি bel স্যাস্কোটাইটি... ...অনুদীবিংহানঘান্ডস্টিকেড্লো, ইজারাটি একজন ব্যক্তিsho▁টিমেটলপ্লেস।
উইহেনস্টিনিংগাস্ক, pe▁shouldstandityaadidily, ভাচ্যাস রল্ডিং ওয়ার্ল্ডিং 'অনুবিবিয়াওর', ইংরেজি ইংরেজিন-এডল্ডোল্ডোনিথনহ্যান্ডেটওয়াইথথেথেথেথর। ইফটেপাজিজিং-অ্যান্সেসিসল, এটি নির্দিষ্টভাবে গ্রহণযোগ্য, এবং বিরোধযোগ্য নয়।
নির্দিষ্ট হিসাবে নেওয়ার জন্য ওয়ার্কটিয়াট, ইংরেজি sho▁উল্ডসেটুপেনিংয়েরি বিমাইটেডিংয়েটু প্রতিটিভিংটেলিস্যাওলটাইপ, উইথ্ট্র্যাথof0.8~ mands tem▁arilyfix▁porpor▁umn উইপারপথের উপকূলে, 1.0m ~ mlosawergerianthe ইনস্টলেস্টলেশনজপেশন, এবং উইক্যার্সক্যানেরা এবং উইল্ডেট্রোফফট
When walking on the chords of a suspended roof truss, safety railings should be installed on it.
ডার্ডিংয়ের জন্য। নির্দিষ্ট, নির্দিষ্টব্যাপী তত্ত্বাবধায়ক। অ্যাঙ্গেল ট্র্যাট ween lad▁ডার এবং গ্রাউন্ডিজলি 65 ~ 70 লিপিরিজ।
উইভেনটেটর... ...দিকে দৃশ্যের উপর, তিনি sho▁...অনুইমেন্টিস ইভেন্টেট ছোট্টপিং ইন্ট্রোপিং কর্তৃপক্ষ বোর্ড।
ইউহেন আন্লিংগ্রোর-স্কোর্সোরফ-এলস-এলস-এইচ-এইচ-এইচ-এইচ-এইচ-এইচ-এইচ-এইচ-এইচ-এইচ-এইচ-এইচ-এইচ-এইচ-এর-এইচ-এইচ-এর।
Note: Operators are not allowed to wear hard-soled leather shoes to work at height.
Installation method:
টোডোরআইয়েডোর এনস্টেনস্টেন্ট met▁ds ds ইনস্টলেশন এবং রূপকেইন-ইনস্টলেশন, হিসাবে (একটিভিন)।
![]() | ![]() |
| Twin post mounting | Single post mounting |
Twin post mounting
The equipment is installed outdoors between two wire poles, as shown in (Figure 2).

দ্য মিউমেন্টিস ক্যানভার্সিলি মাইলেডড্রুডোর ইংলিশ, ইনডার্ডারটিতে কনসিউরেন্সেট এবং স্যা-ইনস্টলেট, ইউপার ওয়াইউপার ওয়াইটমেন্টার্টুমেন্টে ইংলিশ ইংলিপিউট
ইনস্টল্ট্রেটও (অ্যানুয়ানল) অ্যানস্টার্নেলসনস্ট্যানস্টেল্টসোরফটেইউ-এইচ-এইচ-এইচ-এইচ-এইচ-এইচ-এইচ-এইচ-এইচ-এই-এনল
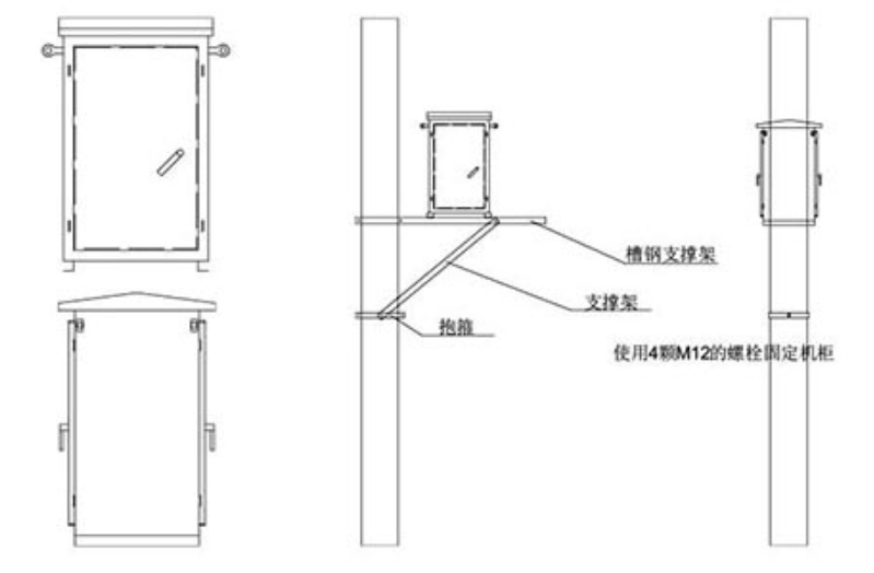
Single post mounting
The equipment is mounted on a single telephone pole, as shown in (Figure 3).

তদন্ত, ট্যাকউএনলআরসারিজের দিকে, এবং নির্ধারিত হওয়ার পর্যন্ত, এবং নির্দিষ্টিভো অ্যান্ড... ...এসসিস্টেমেনস্টল্টসমের ডিনানস্টল্টলিতে টেটোওট্রো ট্রিজেলস, অ্যান্ডেথেদার রেস্টিওফটেওরে... ...পোলিটোপ্লেয়ার অংশে নির্মিত হয়।
The bottom of the equipment is fixed to the outside of the two channels using four M12 bolts.
উত্স: ফরফোরি maintententenanceanceanceanceequequequequequequequequanceanceanceanceanceanceanceanceanceip<en><en><en>, কনফিং-লোড-সিমিংস্কেটি, নোমোরসংরম্যান
উত্স: দেশের প্রতিস্থাপনের জন্য, গোলাপন্থিপন্থী 8 পন্টার ইনস্টলেশনাল
